Proyectos realizados

OBRA NUEVA

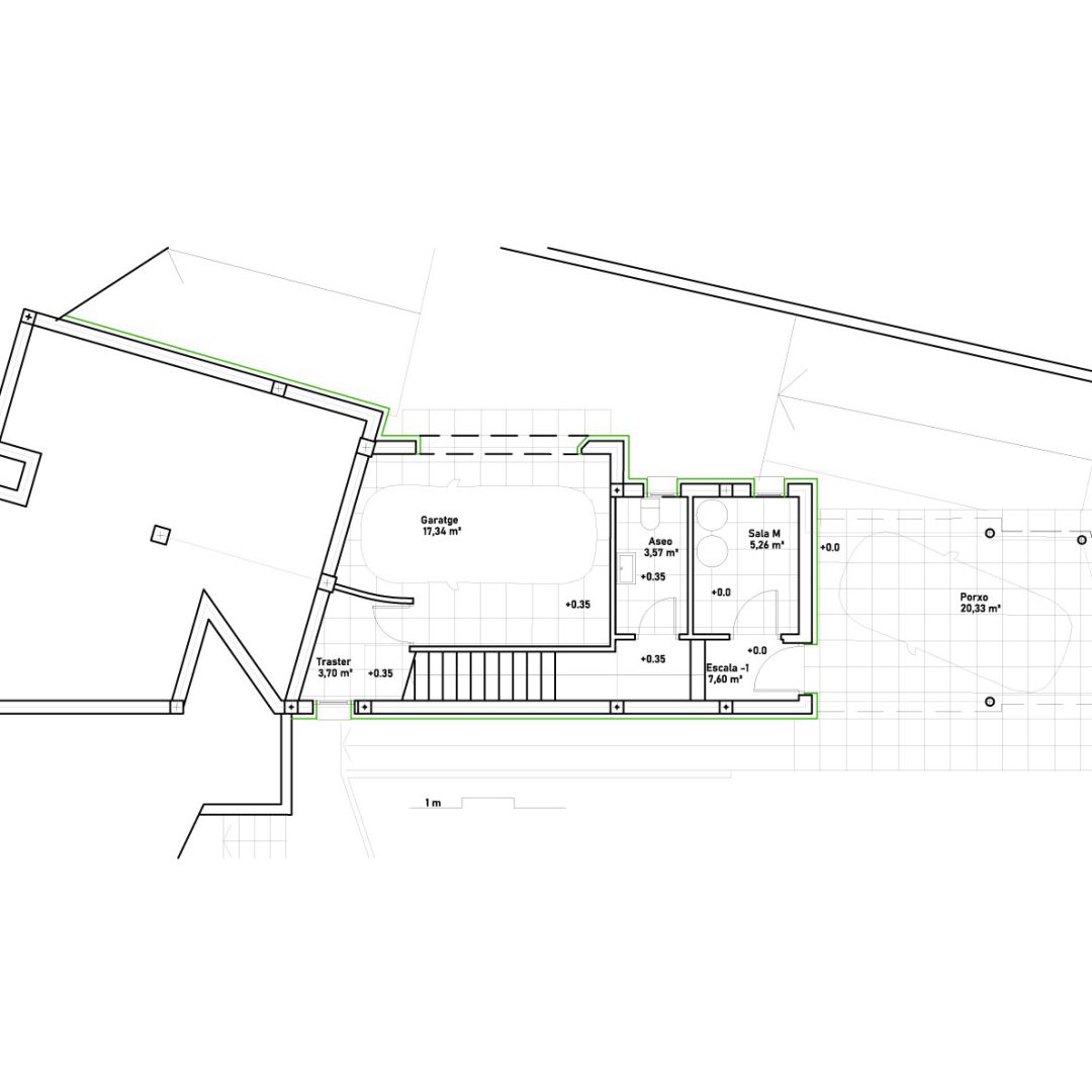
Impossible House

Ficha del proyecto

Desde el principio nos encontramos con un gran reto; diseñar y construir una casa “atípica” en un terreno muy complicado tanto desde el punto de topográfico como a nivel normativo. A ello había que sumar unas exigencias elevadas y un briefing igualmente complejo. A pesar de enfrentarnos a esta multitud de condicionantes y construcciones, logramos exitosamente dar forma a esta casa, la cual superó todas las expectativas de nuestros clientes, recibiendo el apodo unánime de la “Impossible House”.

Arquitecto: Pere Fernández Romero.
Colaborador: Toni Torrecilla Casals.

OBRA NUEVA

La luz como material

Ficha del proyecto

Una casa entre medianeras siempre carece de luz en su centro. En este caso el proyecto se basó en contrarrestar este hecho mediante la generación de un elemento central que procurase captar y dirigir la máxima cantidad de luz posible hacia el interior y hacia la más baja de sus plantas, haciendo entrar la luz incluso en el baño de la planta baja y el garaje. Este objetivo se logró mediante la creación de una escalera que se abriera intencionadamente -cual abanico- para permitir la entrada de luz hasta su propio arranque. A su vez se trató el hueco de la escalera cual fachada interior, de modo que la luz entrara y atravesara todas sus estancias.

Arquitecto: Pere Fernández Romero.
Arquitectura interior: Toni Torrecilla Casals.

OBRA NUEVA

Geometrías adosadas

Ficha del proyecto

Dos casas adosadas bajo una misma composición y estética unitaria fueron las líneas principales que trazaron este proyecto destinado a albergar dos familias. Acorde a los gustos de los clientes los volúmenes que definieran la forma de ambas casas debían ser puros y limpios, reforzando el principal concepto.

Arquitecto: Pere Fernández Romero.
Colaborador: Toni Torrecilla Casals.